SYLVIE DURAND Négociatrice
Télécharger la fiche

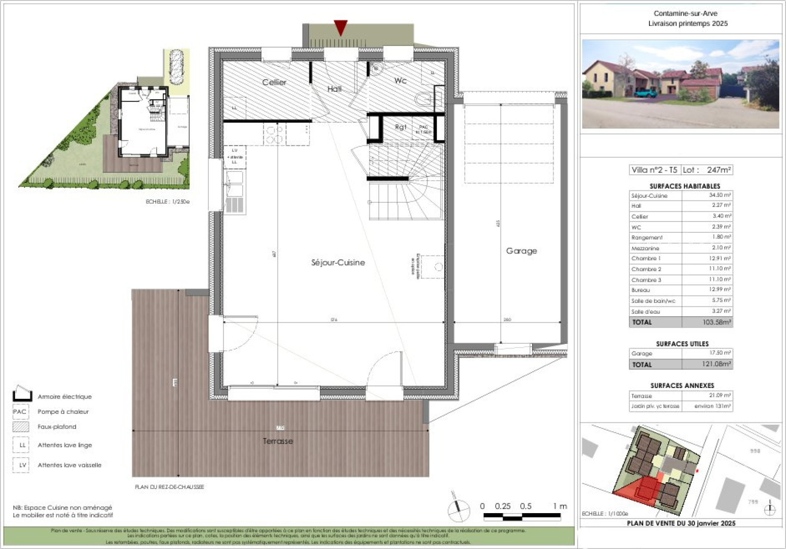
Villa 5 pièce(s) 3 chambre(s) 103.58 m²

Contamine-sur-Arve (74130)
485 000 € Référence 218

A propos de ce bien

Villa contemporaine construite en 2025 de 103 m² à Contamine-sur-Arve (74), FRAIS DE NOTAIRE REDUIT. Située au coeur d'un environnement calme, cette villa de 103 m² répartie sur deux niveaux vous séduira par ses prestations de qualité. Au rez-de-chaussée, vous trouverez un hall d'entrée, un bel espace de vie lumineux de 34,50 m² avec séjour et cuisine ouverte, un cellier, des WC indépendants ainsi qu'un espace de rangement. L'étage propose une configuration modulable selon vos besoins : Version standard : 4 chambres, dont une suite parentale avec salle d'eau privative, une salle de bain avec WC et une mezzanine. Autres possibilités : une suite parentale, 3 chambres ou bien une suite parentale, 2 chambres et un bureau. Le confort est assuré par un système de chauffage performant via pompe à chaleur. À l'extérieur, vous profiterez d'un jardin privatif de 135 m² exposé ouest, idéal pour vos moments de détente, ainsi qu'une terrasse de 21,90 m². Un garage de 17,90 m² complète le bien, avec une mitoyenneté limitée à cette seule partie. Un local à vélo est également à disposition. Une situation idéale : Contamine-sur-Arve bénéficie d'un emplacement stratégique, à seulement 8 km de Bonneville, 11 km d'Annemasse, 13 km de La Roche-sur-Foron, 15 km de Genève, 37 km d'Annecy et 58 km du Mont-Blanc. La commune est facilement accessible grâce à un réseau routier bien développé.

Caractéristiques de ce bien

  • Surface 103,58 m²
  • carrez 103 m²
  • terrain 135 m²
  • séjour 34 m²
  • 3 chambre(s)
  • 1 salle(s) de bain
  • 1 salle(s) d'eau
  • construit en 2025
  • Cuisine aménagée et équipée
  • Chauffage individuel : au sol (pompe à chaleur)
  • 1 garage(s)
  • 1 parking(s)
  • exposition Sud-Ouest
  • 1 côté(s) mitoyen(s)
  • 2 niveau(x)
  • 1er étage
  • 1 étage(s)
  • terrasse
  • visiophone
  • interphone

Diagnostics énergétiques

DPE
GES
DPE ANCIENNE VERSION

Informations financières

Prix de vente 485 000 € Les honoraires d'agence seront intégralement à la charge du vendeur

Autour du bien

  • Commerces et santé
  • Loisirs
  • Ecoles
  • Transports
  • Pratique

Calcul des mensualités

* Champs obligatoires